70 Annamoe Drive,Dublin 7
€450,000
Bedrooms 2
66 SQ M

Wonderful 2-bedroom residence spanning 66 m² on 2 levels.

  • Planning permission submitted to DCC for a double extension, offering further potential to significantly enhance and expand the existing accommodati
  • Enviable location within walking distance of Phibsboro village
  • Side pedestrian access
  • Low maintenance private rear garden
  • Gas fired central heating
Description

MOVEHOME ESTATE AGENTS ... are honoured to offer this charming 2 bedroom end of terrace property that is simply a wonderful light filled dream home ideally positioned on the doorstep of Stoneybatter and Phibsborough villages. The property was built in c.1940's and spans 66 m on two levels and offers excellent potential for modernisation

The accommodation briefly comprises of an entrance hallway, living room/home office to the front, open-plan kitchen and breakfast room with separate utility area to the rear. Upstairs there are two generous double bedrooms and family bathroom with access to the attic, which it ideal for storage.

Planning permission has been submitted to Dublin City Council for a double extension, offering further exciting potential to significantly enhance and expand the existing accommodation (subject to approval).

To the front of the property there is a beautiful private gated garden with a southerly aspect and on street parking. To the rear of this delightful property there is a private garden with an abundance of greenery and accessed through both the kitchen and from the side pathway.

Local facilities are in abundance and include a variety of excellent schools, shops, restaurants and leisure amenities. It is located within walking distance of the Phoenix Park, Botanic Gardens, TUD Grangegorman, Inspire gym & swimming pool. Local villages of Phibsborough and Stoneybatter are a short walk away. Transport links include an excellent bus service allowing easy access for all commuters, Broombridge Train Station and the Luas. There is easy access to the N3, M50 and Dublin Airport is a 20 minute drive approx.

Early viewing is essential to appreciate all this wonderful property has to offer and can be arranged with MOVEHOME ESTATE AGENTS ... on 01-8844690

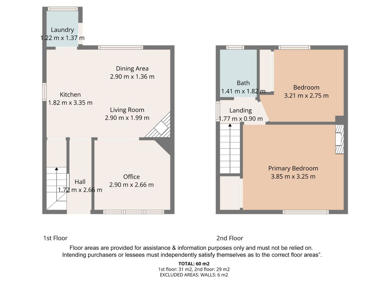
Ground Floor

Entrance Hall
2.66m x 1.72m

Living room / office
2.90m x 1.99m

Kitchen area
3.35m x 1.82m

Dining area
2.90m x 1.36m

Utility
1.37m x 1.22m

First Floor

Master bedroom
3.85m x 3.25m

Bedroom 2
3.14m x 2.03m

Bathroom
1.82m x 1.41m

Landing
1.77m x 0.90m

** Overall area approx. 66 sq. mtrs **
**Please note all measurements and floor plans are approximate and provided for guidance only**
All information provided is to the best of our knowledge. The utmost of care and attention has been placed on providing factual and correct information. In certain cases, some information may have been provided by the vendor to us. While every care is taken in preparing particulars the firm do not hold themselves responsible for mistakes, errors or inaccuracies in our online advertising and give every viewer the right to get a professional opinion on any concern they may have.

Want to buy or Sell a Property?
Call Us Today
+353 1 88 44 690
(for everything except lettings)
(for lettings enquiries)
94 Drumcondra Road Upper,
Drumcondra, Dublin 9.
OR
No. 1 Capel Street, Dublin 1.
Please read our privacy policy. This website uses only essential cookies, continued use of the site will be deemed as your acceptance of this necessity.
PSRA Licence No. Sales: 001747